Parkett Direkt

Parkett Direkt

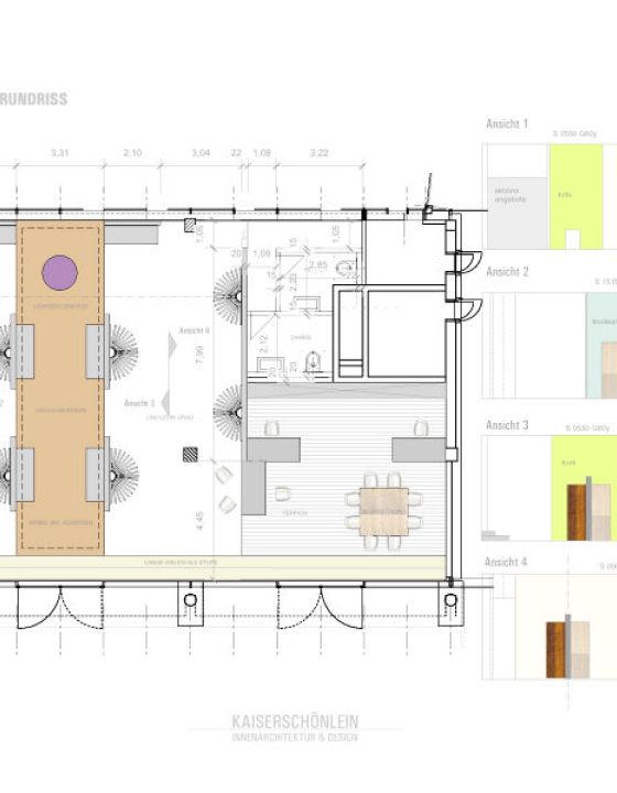
Projektbeschreibung

AUSGANGSBASIS, AUFGABENSTELLUNG & UMSETZUNG

Das Shopkonzept PARKETT-DIREKT wurde zunächst für den Flagship-Store in Berlin entwickelt und später auf die Standorte München, Stuttgart und Hannover übertragen.


Planungsbeginn:

Februar 2007

Fertigstellung:

Berlin 2007, Stuttgart 2008, München 2009, Hannover 2009